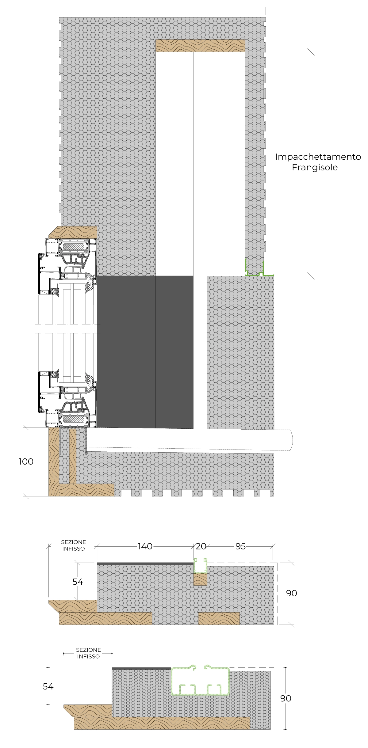
Il monoblocco termoisolanti per tenda frangisole è progettato e realizzato da Telcam per alloggiare qualsiasi sistema di tenda frangisole. Questa tipologia di monoblocco prevede un montaggio dell’infisso a filo muro interno, in questo modo la dispersione termica viene ridotta drasticamente aumentando il comfort interno. Disponibile in misure standard e su misura, in funzione delle specifiche esigenze del cantiere. Il team tecnico dell’azienda Telcam si occupa della progettazione e dell’assistenza tecnica per risolvere qualsiasi problema di cantiere.
> Cassonetto per l’alloggio della tenda frangisole
> Isolamento termico perimetrale
> Pannellature/Spalle laterali isolanti
> Sottobancale per il posizionamento in EPS
> Per interni e per esterni
Risparmio Energetico
Trasmittanza termica garantita per ridurre i costi di riscaldamento e raffreddamento
Prodotti su Misura
Soluzioni personalizzate progettate ad-hoc dal team di Ricerca e Sviluppo
Politica Ambientale
Materiali ecocompatibili per salubrità, basse emissioni e sostenibilità ambientale
Certificazioni
I nostri prodotti sono certificati e garantiti da laboratori tecnologici accreditati






